Description
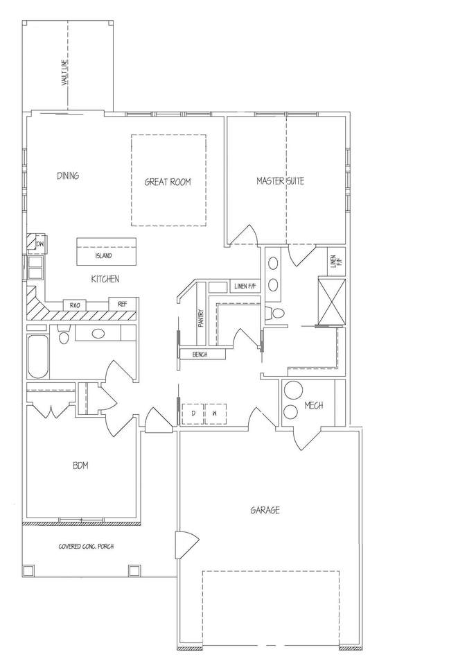
Welcome to Honeysuckle Villas, a beautiful new development in Cambridge offering brand-new one-level villas designed for comfort, simplicity, and style. These thoughtfully designed homes feature in-floor heat throughout, providing cozy warmth in every season, along with mini-split systems that offer both AC and a secondary heat source for year-round efficiency. Each villa offers an open-concept floor plan, 2 spacious bedrooms, and 2 bathrooms, all with all living facilities on one level for easy, accessible living. Buyers can choose from three garage configurations to suit their lifestyle needs: a standard 2-car garage, a 3-car garage, or an oversized 3-car garage, ideal for additional storage, hobbies, or recreational vehicles. With no HOA association, you'll enjoy the freedom of homeownership without extra monthly fees or restrictions. Whether you're looking to downsize, simplify, or start fresh in a beautiful new community, Honeysuckle Villas offers the perfect place to call home. Don't miss your opportunity to build in this exciting new development. Let's start building your ideal home and easy-living lifestyle today!
-
2BEDS
-
N/AACRES
-
2BATHS
-
01/2 BATHS
-
1,350SQFT
-
$285$/SQFT
Listing courtesy of eXp Realty.Description
Welcome to Honeysuckle Villas, a beautiful new development in Cambridge offering brand-new one-level villas designed for comfort, simplicity, and style. These thoughtfully designed homes feature in-floor heat throughout, providing cozy warmth in every season, along with mini-split systems that offer both AC and a secondary heat source for year-round efficiency. Each villa offers an open-concept floor plan, 2 spacious bedrooms, and 2 bathrooms, all with all living facilities on one level for easy, accessible living. Buyers can choose from three garage configurations to suit their lifestyle needs: a standard 2-car garage, a 3-car garage, or an oversized 3-car garage, ideal for additional storage, hobbies, or recreational vehicles. With no HOA association, you'll enjoy the freedom of homeownership without extra monthly fees or restrictions. Whether you're looking to downsize, simplify, or start fresh in a beautiful new community, Honeysuckle Villas offers the perfect place to call home. Don't miss your opportunity to build in this exciting new development. Let's start building your ideal home and easy-living lifestyle today!
IDX data © 2026 Regional Multiple Listing Service of Minnesota, Inc. All rights reserved. The data relating to real estate for sale on this web site comes in part from the Broker Reciprocity℠ Program of the Regional Multiple Listing Service of Minnesota, Inc. Real estate listings held by brokerage firms other than The Smith Team - Keller Williams Premier Realty are marked with the Broker Reciprocity℠ logo or the Broker Reciprocity℠ thumbnail logo (a little black house) and detailed information about them includes the name of the listing brokers. The Smith Team - Keller Williams Premier Realty is not a Multiple Listing Service, nor does it offer MLS access. This website is a service of The Smith Team - Keller Williams Premier Realty, a broker Participant of the Regional Multiple Listing Service of Minnesota, Inc. Information deemed reliable but not guaranteed. By viewing the listings on this site, you are agreeing to abide by the RMLS End-User License Agreement. Data last updated 2026-02-17T00:21:21.287.
Click here for Digital Millennium Copyright Act
