Description
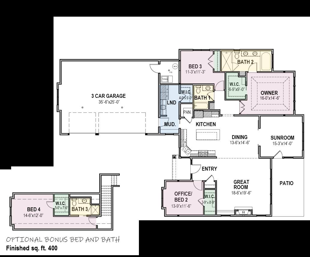
Discover the Princeton floor plan at Park Place Village. Offering 2,300 square feet of one-level living space, it achieves a balance between elegance and practicality. High ceilings, natural light, and an open layout make it perfect for relaxing and entertaining. The living room features 11-foot ceilings and a gas fireplace for relaxation or entertaining. Andersen 400 Series windows offer natural light and views of the lot next to the proposed city park. The adjoining kitchen has premium stainless-steel appliances, custom cabinetry, and a central island for meal prep and informal dining. The sunroom, with parkland views and ample light, is perfect for calm mornings or hosting guests. The primary suite is enhanced with a tray ceiling and a spacious design that seamlessly connects to an ensuite bathroom. The bathroom offers a soaking tub, a separate walk-in shower, and dual vanities. Additionally, a generous walk-in closet provides ample storage space. The property includes a finished, heated three-car garage. HOA dues of $195 per month cover lawn care, irrigation maintenance, and snow removal, offering residents a low-maintenance lifestyle with more time to enjoy nearby amenities. Park Place Village is situated near parks, walking trails, and the St. Croix River. Downtown Hudson provides shopping, dining, and entertainment options. It is also located near the Twin Cities, offering a combination of suburban and urban conveniences. Don't miss out!! Contact us today to learn more or stop by to look at all Park Place Village has to offer. **Other floor plans available stop by for a tour** Model Location - 2225 Sharon Lane, Hudson, WI 54016 Model Hours - M-F 10am-4pm / Sat & Sun 11am-3pm
-
4BEDS
-
0.22ACRES
-
3BATHS
-
01/2 BATHS
-
2,700SQFT
-
$343$/SQFT
Listing courtesy of Divine Real Estate Group.Description
Discover the Princeton floor plan at Park Place Village. Offering 2,300 square feet of one-level living space, it achieves a balance between elegance and practicality. High ceilings, natural light, and an open layout make it perfect for relaxing and entertaining. The living room features 11-foot ceilings and a gas fireplace for relaxation or entertaining. Andersen 400 Series windows offer natural light and views of the lot next to the proposed city park. The adjoining kitchen has premium stainless-steel appliances, custom cabinetry, and a central island for meal prep and informal dining. The sunroom, with parkland views and ample light, is perfect for calm mornings or hosting guests. The primary suite is enhanced with a tray ceiling and a spacious design that seamlessly connects to an ensuite bathroom. The bathroom offers a soaking tub, a separate walk-in shower, and dual vanities. Additionally, a generous walk-in closet provides ample storage space. The property includes a finished, heated three-car garage. HOA dues of $195 per month cover lawn care, irrigation maintenance, and snow removal, offering residents a low-maintenance lifestyle with more time to enjoy nearby amenities. Park Place Village is situated near parks, walking trails, and the St. Croix River. Downtown Hudson provides shopping, dining, and entertainment options. It is also located near the Twin Cities, offering a combination of suburban and urban conveniences. Don't miss out!! Contact us today to learn more or stop by to look at all Park Place Village has to offer. **Other floor plans available stop by for a tour** Model Location - 2225 Sharon Lane, Hudson, WI 54016 Model Hours - M-F 10am-4pm / Sat & Sun 11am-3pm
Related Properties
IDX data © 2025 Regional Multiple Listing Service of Minnesota, Inc. All rights reserved. The data relating to real estate for sale on this web site comes in part from the Broker Reciprocity℠ Program of the Regional Multiple Listing Service of Minnesota, Inc. Real estate listings held by brokerage firms other than The Smith Team - Keller Williams Premier Realty are marked with the Broker Reciprocity℠ logo or the Broker Reciprocity℠ thumbnail logo (a little black house) and detailed information about them includes the name of the listing brokers. The Smith Team - Keller Williams Premier Realty is not a Multiple Listing Service, nor does it offer MLS access. This website is a service of The Smith Team - Keller Williams Premier Realty, a broker Participant of the Regional Multiple Listing Service of Minnesota, Inc. Information deemed reliable but not guaranteed. By viewing the listings on this site, you are agreeing to abide by the RMLS End-User License Agreement. Data last updated 2025-11-09T18:21:57.153.
Click here for Digital Millennium Copyright Act
